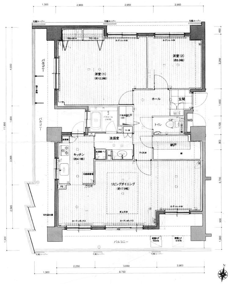
広々約90平米。南西角部屋で三方眺望良好。窓の先には小笠山の緑、富士山や掛川城も望めます。


売マンション / 掛川市南一丁目エクセルシオール掛川 / 専有面積 89.84㎡(内法)/ 2LDK 鉄筋コンクリート造15階建12階部分 / 平成16年7月築 / 現況:居住中 / 引渡し時期:相談
金額:3,650万円 / 管理費16100円・修繕積立費11682円

備考:駐車場1台(4,000円)、オール電化、IHクッキングヒーター、トイレ、三面採光、南西角部屋、室内洗濯機置場、エレベーター、食器洗浄乾燥機、シャワー付洗面台、温水洗浄便座、二面バルコニー、駐輪場、バイク置場、自治会費800円、納戸、クローゼット、床暖房(リビング)













