周辺に商業・公共施設が多数あり、小・中学校も徒歩15分圏内で生活利便性の高い好立地な人気のマンション。眺望も良好、袋井花火が見えます。


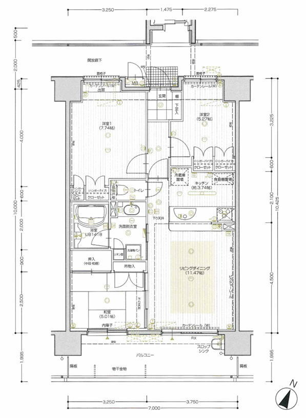
売マンション / 袋井市田町 エンブルスクエア袋井 / 専有面積 71.00㎡(壁芯)/ 3LDK 鉄骨鉄筋コンクリート造10階建7階部分 / 平成20年7月築 / 現況:居住中 / 引渡し時期:相談
金額:1,950万円 / 管理費16200円・修繕積立費7050円

備考:駐車場敷地内1台、都市ガス、公営水道、公共本下水、メールボックス、宅配ボックス、エレベーター、床暖房(ガス)、24時間換気システム、オートロック、ペット相談可













