掛川市のイエステーション 掛川店 株式会社アーガス > (住宅以外建物全部)地域から探す > 袋井市 > 袋井栄町倉庫 > 物件詳細
賃料11万円の物件です。車にいたずらされにくい、敷地内駐車場の空きがあります。お早めにお問い合せ下さい。車の駐車が1台出来ます。駅から徒歩8分の位置にある物件なので、アクセスも良好です。礼金が不要という初期費用節約につながる物件です。急な転勤に嬉しい条件。礼金不要なので、すぐに入居したい方はこちらへどうぞ。


※1. 仲介手数料は仮の価格となりますので、実際の価格に関してはお気軽にお問い合わせ下さい。
※2. 1か月を30日として計算しています。
| 所在地 | 静岡県袋井市栄町 | ||
|---|---|---|---|
| 交通 | |||
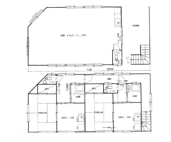
| 賃料/坪単価 | 11万円/0.33万円 | 坪数(面積) | 33.54坪(110.90㎡) |
| 管理費・共益費 | 10,000円 | 敷金/礼金/保証金 | 3ヶ月/0ヶ月/- |
| 償却/敷引 | -/- | 更新料 | - |
| 駐車場/月額料金 | 有(1台)/- | 権利金/雑費 | -/- |
| 保険加入/料金 | 有/- | 保険名/保険期間 | -/- |
| 保証人代行義務/利用料 | 必加入/ 初回:月額総賃料×100% 月額:月額総賃料×0.8% | 保証会社 | ジェイリース |
| 保証会社詳細 | - | 向き | - |
| 築年月(築年数) | 1978年 7月 (築47年) | 契約期間 | 3年 |
| 種別/構造 | 倉庫/鉄骨造 | 部屋/所在階/階建 | -/-/2階建 |
| 現況 | 空家 | 引渡時期 | 即時 |
| 取引態様 | 一般媒介 | ||
| 物件番号 | 100328979 | 取引条件の有効期限 | 2026年02月05日 |
| 設備条件 |
|
||
| 備考 | 貸店舗、貸事務所利用可 袋井市創業者助成金対象 駅から徒歩 7分 貸駐車場物件の前に有 | ||
| 取扱会社 |
|
||
| QRコード |
このQRコードを読み取ることで、スマホでも物件情報を確認できます。 |
||
※地図上に表示される物件の位置は付近住所に所在することを表すものであり、実際の物件所在地とは異なる場合がございます。
袋井市の町名から探す
袋井市にある駅から探す
袋井栄町倉庫周辺の駅から探す